501003 -Grundstück mit Projekt für ein Landhaus in Llucmajor zum Verkauf

Llucmajor

€ 750,000
  • Ref.: 501003

Landhausprojekt in Llucmajor!

Das Landhaus verfügt über 7 geräumige Schlafzimmer mit viel Tageslicht, sowie 7 Bäder.
Ein offener Wohnraum mit offener Küche liegt vor der Terrasse zum Pool.
Der Pool wird 35 m² gross und die Terrasse zum Pool ist halb überdacht.

Die Grundstücksgrösse beträgt 21.112 m². Das Wohnhaus ist mit 844 m² Nutzfläche geplant.

Dieses nach hohe Energieeffizienzkriterien erbaute Landhaus liegt inmitten der Natur, nur wenige Minuten von Palma entfernt und mit guter Anbindung an alle wichtigen Dienstleistungen.

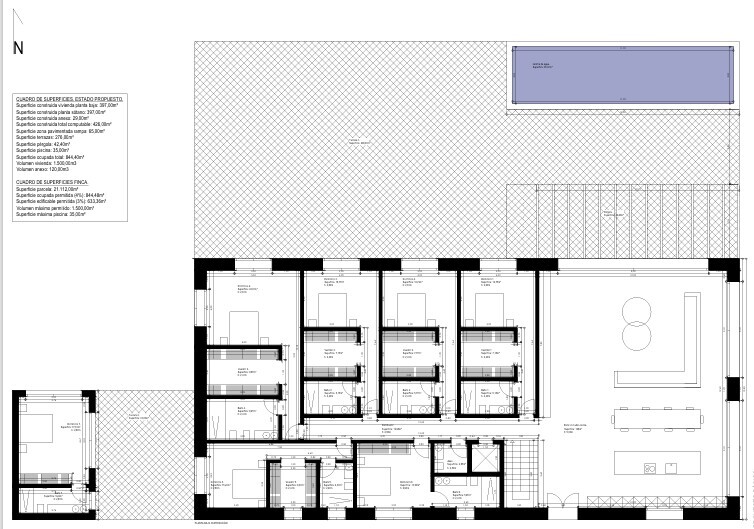
Flächentabelle. Vorgeschlagener Zustand.
Bebaute Fläche EG: 397 m²
Bebaute Fläche UG: 397 m²
Bebaute Fläche Anbau: 29 m²
Gesamtbebaute Fläche: 426 m²

Fläche der gepflasterten Rampe: 65 m²
Fläche der Terrassen: 276 m²
Fläche der Pergola: 42,40 m²
Fläche des Swimmingpools: 35 m²
Gesamtfläche : 844 m²

Volumen des Wohnhauses: 1.500 m³
Volumen Nebengebäuder: 120 m²

Flächentabelle Grundstück
Grundstücksfläche: 21.112 m²
Zulässige Grundfläche (4%): 844,48 m²
Zuslässige bebaubare Fläche (3%): 633, 36 m²
Zulässiges maximales Volumen: 1.500 m²

VK Preis € 750.000,– incl. Grdstck. und Projekt
VK Preis € 3.750.000,– komplett mit Fertigstellung

Llucmajor ist flächenmäßig die größte Gemeinde Mallorcas und liegt im Süden der Insel. In der kleinen Stadt gibt es Supermärkte, Cafés und Tapa-Bars und sogar 3x wöchentlich einen Obst- und Gemüsemarkt im kürzlich komplett renovierten Ortskern mit seinem Plaza de España und der zweitgrößten Kirche Mallorcas. Auf Grund der Autobahnanbindung nach Palma hat sich Llucmayor in den letzten Jahren zu einem verkehrsgünstigen und deshalb beliebten Wohnort entwickelt. Der Naturstrand Es Trenc, einer der schönsten Strände der Insel mit karibischem Flair, befindet sich nur 15 Minuten entfernt. Viele Reit-, Spazier- und Radfahrmöglichkieten..

Llucmajor
501003 Llucmajor

Rufen Sie uns an und vereinbaren Sie einen Besichtigungstermin.

Bitte rufen Sie uns an +34 971 707 813 oder füllen Sie das folgende Formular aus. Wir melden uns umgehend bei Ihnen.

Name / Nombre

E-Mail/email/Correo electrónico

Telefon / Phone number / Número de Teléfono

Objekt / Property / Propiedad

Nachricht / Message / Mensaje